Leave a Message

Thank you for your message. We will be in touch with you shortly.

7021 Quinn Court SE
7021 Quinn Court SE
7021 Quinn Court SE
SEE ALL PHOTOS
7021 Quinn Court SE
7021 Quinn Court SE
7021 Quinn Court SE
Provided by NWMLS, Listed by Realty One Group Turn Key
Sold

7021 Quinn Court SE

7021 Quinn Court SE, Tumwater, WA 98501

$654,980
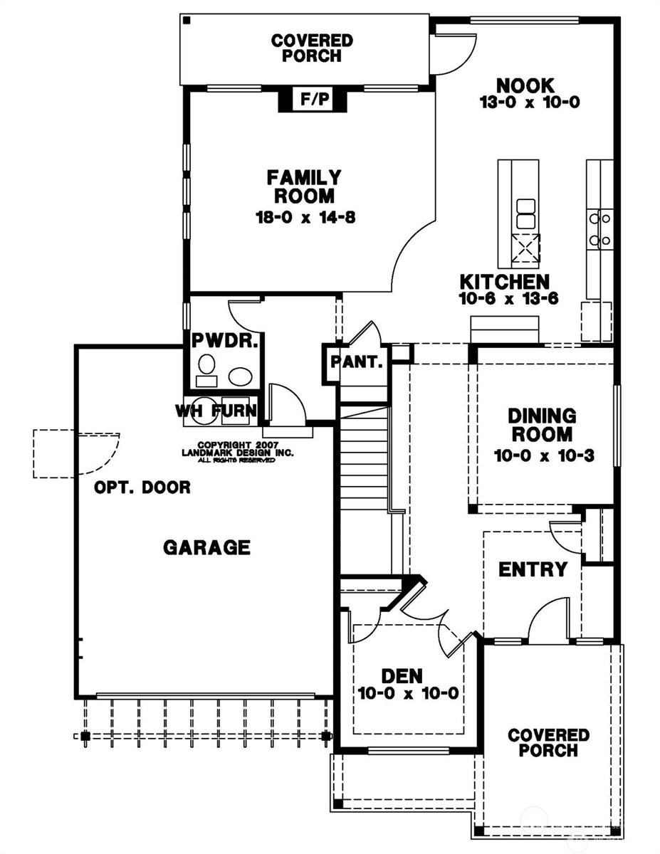
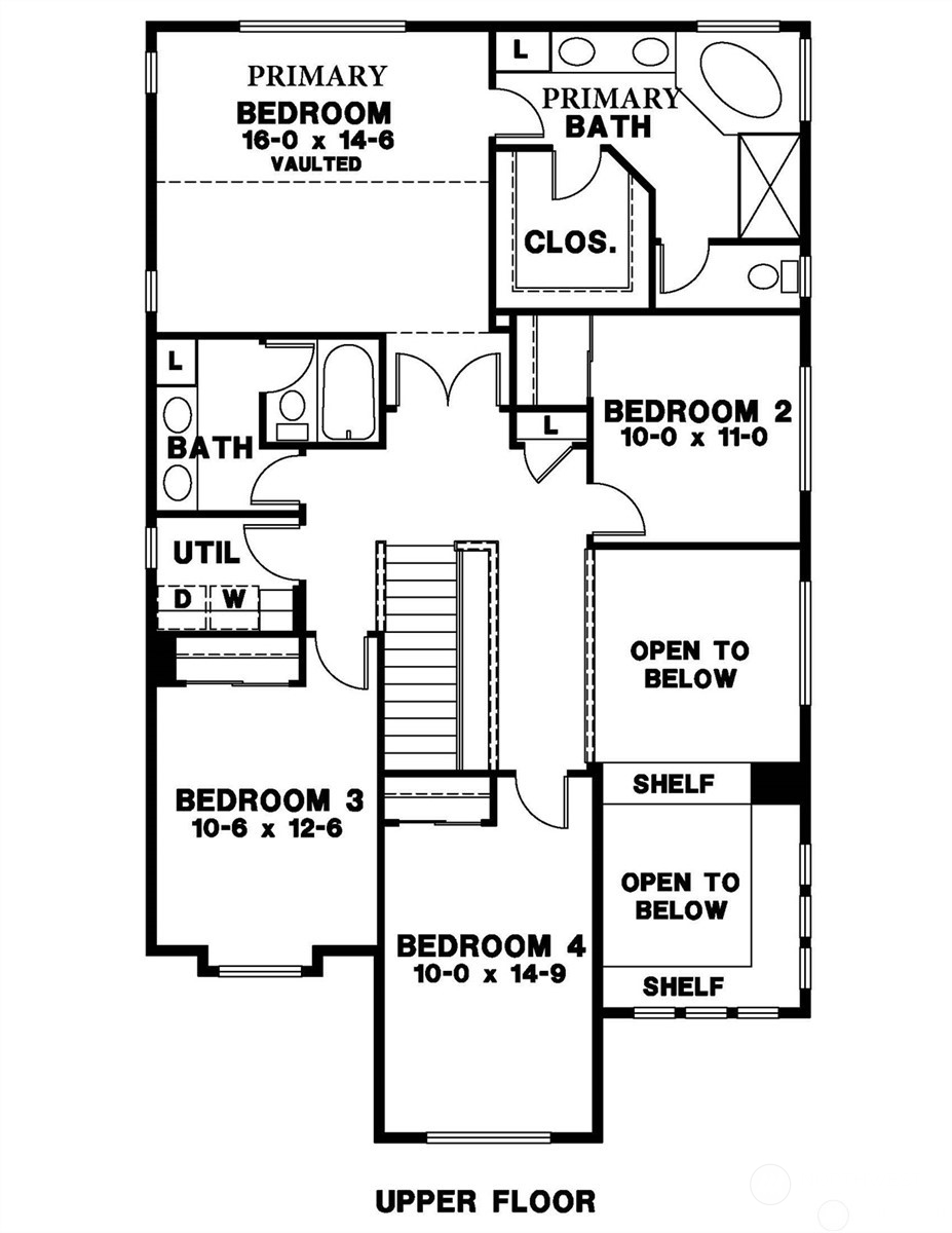
Sager Family Homes is now building at Henderson Park, a cul-de-sac community of 22 single-family homes offering commuters easy access to easy access to schools, shopping, parks and easy access to I-5. This charming plan offers it all with 2700 sq. ft. great room living with spacious island kitchen, great room, an office or bedroom on main and formal dining room. Upstairs offers Primary bedroom with en-suite bath, 5 additional spacious bedrooms, full bath and upstairs laundry. 2 car garage. If you are working with a licensed broker, it is a requirement your broker registers you as their buyer prior to your first visit to our model home and community per site registration policy.

5
beds

3
baths

2,700 Sq.Ft. LIVING AREA

4,000 Sq.Ft. lot

DeAnna Franklin

DeAnna Franklin

Features & Amenities

Interior

  • total bedrooms5
  • Total bathrooms3
  • full bathrooms2
  • half bathroom1
  • Flooring Laminate, Vinyl, Carpet
  • Fireplace Electric
  • APPLIANCES Dishwashers_, Microwaves_, Stoves Ranges_
  • other interior Features Laminate, Wall to Wall Carpet, Bath Off Primary, Double Pane/Storm Window, Loft, Walk-In Closet(s), Walk-In Pantry, Fireplace, Water Heater

Area & Lot

  • Status Sold
  • Living Area2,700 Sq.Ft.
  • Total Area2,700 Sq.Ft.
  • Lot Area4,000 Sq.Ft.
  • MLS® ID2211939
  • TypeResidential
  • YEAR BUILT2024
  • Architecture StylesCraftsman
  • Elementary SchoolBuyer To Verify
  • Middle SchoolBuyer To Verify
  • High SchoolBuyer To Verify
  • School DistrictTumwater

Exterior

  • STORIES2
  • Garage Space2.0
  • water SourcePublic
  • roofComposition
  • lot featuresCul-De-Sac, Curbs, Paved, Sidewalk
  • parkingAttached Garage
  • HEAT TYPE90 High Efficiency, Forced Air, Heat Pump
  • AIR CONDITIONING90 High Efficiency, Forced Air, Heat Pump
  • sewerSewer Connected
  • SubstructurePoured Concrete
  • other exterior FeaturesCement Planked

Financial

  • Sales Price$654,980
  • Real Estate Tax $288/yr
  • HOA $800/yr

Partner With Our Expert Team

The Franklin Home Team combines decades of experience with a personalized, client-first approach. Our collaborative team ensures clear communication, trusted guidance, and results you can feel confident about.

Follow Me on Instagram